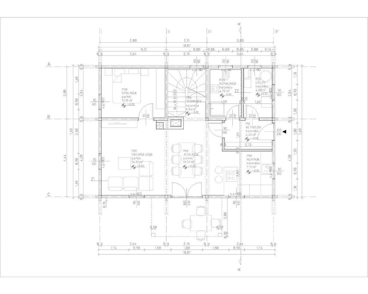
OBJEKT: STANOVANJSKA HIŠA RIHTER
LOKACIJA: REČICA OB SAVINJI
LETO PROJEKTA: 2020
FAZA: DGD, PZI
VRSTA GRADNJE: NOVA GRADNJA
NETO TLORISNA POVRŠINA: 115 m2

Imate tudi vi idejo, ki bi jo radi realizirali?

Galerija