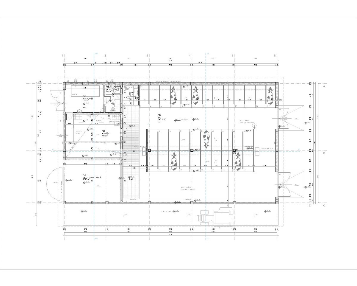
OBJEKT: HLEV GRČA
LOKACIJA: CERKLJE NA GORENSKEM – VELESOVO
LETO PROJEKTA: 2020
FAZA: PZI
VRSTA GRADNJE: NOVA GRADNJA
NETO TLORISNA POVRŠINA: 335 m2

Imate tudi vi idejo, ki bi jo radi realizirali?

Galerija